Главная Статьи Сколько времени нужно для создания чертежей

Сколько времени нужно для создания чертежей

Дизайн-проект позволяет продумать пространство в мельчайших деталях и реализовать все идеи наших клиентов. Чертежи важно сделать быстро, чтобы не растягивать процесс ремонта. В этой статье рассмотрим, сколько времени занимает разработка каждого отдельного чертежа на примере созданного дизайн-проекта.

Содержание

  1. Обмерный план
  2. План расстановки мебели
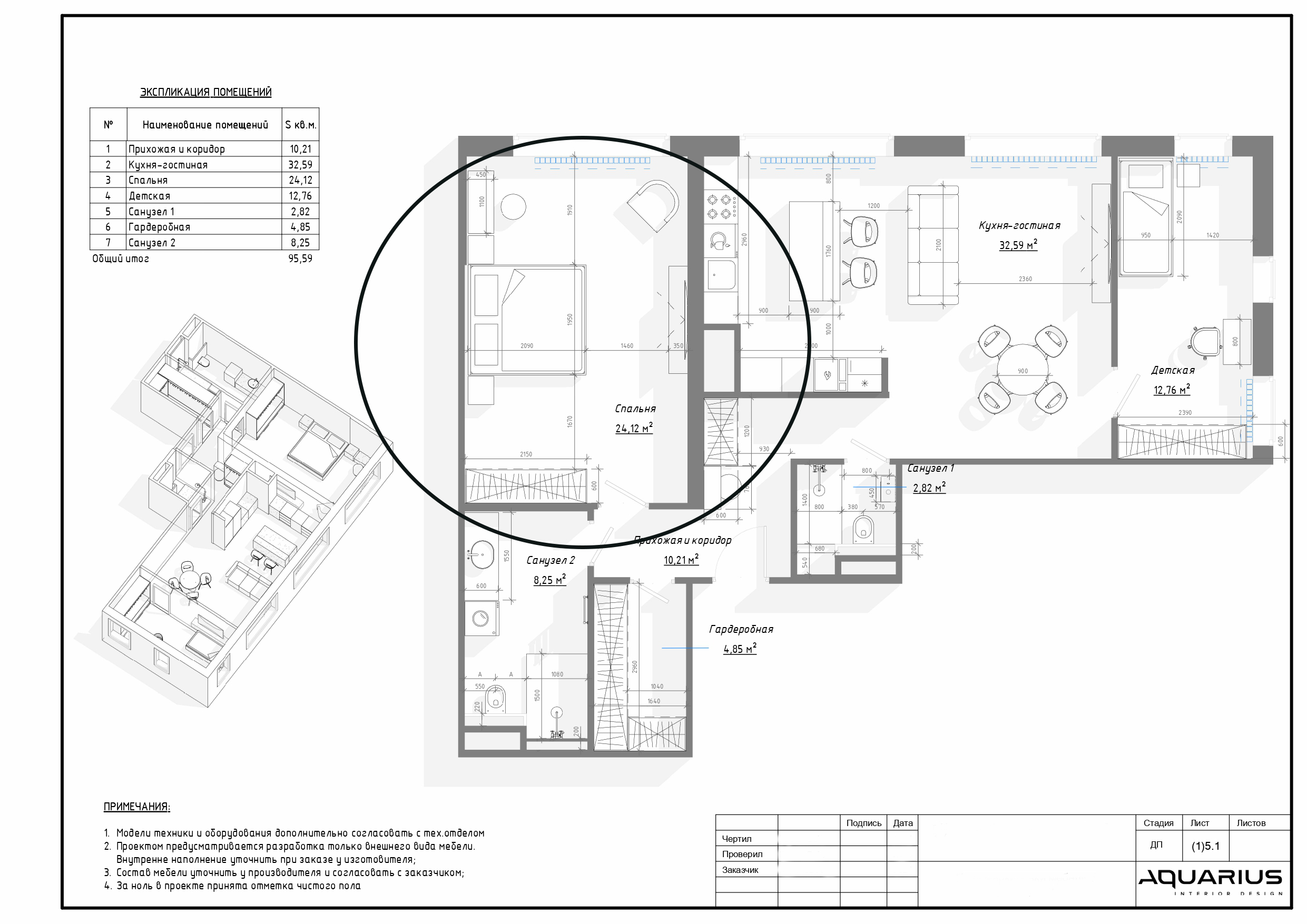
  3. План привязки сантехнического оборудования
  4. План демонтажа и монтажа
  5. План напольных покрытий
  6. План потолка
  7. План освещения
  8. План розеток
  9. План развертки стен
  10. Вывод

Обмерный план

Создание чертежей начинается с обмерного плана. Его делают после замера квартиры. Сначала дизайнер рисует чертеж от руки, и отмечает на нем все размеры. Затем она переносит все значения на обмерный план.

Этот чертеж дизайнер готовит в течение 1–3 дней.

Фото: Обмерный план

План расстановки мебели

После обмерного плана переходят к плану расстановки мебели. Этот чертеж делают дольше остальных, потому что план детально прорабатывают с клиентом.

Фото: План расстановки мебели 

Дизайнер может подготовить несколько вариантов планов расстановки мебели, тогда из них клиент выбирает самый удобный вариант.

Тут больше времени уходит на проработку деталей, поэтому финальный план готовят в среднем за 2–5 дней.


Фото: План расстановки мебели может быть в нескольких вариантах 

План привязки сантехнического оборудования

План привязки сантехнического оборудования является дополнением к плану расстановки мебели. На нем обозначено расположение сантехники, которая будет в квартире.

Чертеж готовят за 1–2 дня.

Фото: План сантехнического оборудования

Мы ценим время и внимание наших клиентов, поэтому дизайнер отправляет чертежи для согласования не по одному, а пакетами. Так получается проще ориентироваться в чертежах, и клиенту не нужно постоянно отвлекаться на ремонт и изучать планы. Он может выделить, к примеру, час своего времени и детально ознакомиться с предложенными дизайнером планами.

В среднем обмерный план, план расстановки мебели и план сантехнического оборудования дизайнер готовит за одну неделю. 

План демонтажа и монтажа

В случае когда в квартире нужна перепланировка или замена каких-либо элементов, дизайнер делает план демонтажа и монтажа. Если в квартире следует сделать перепланировку, тогда чертежи готовят в течение 2–5 дней. Срок зависит от сложности перепланировки и скорости согласования чертежей с заказчиком.

Фото: План демонтажа без перепланировки

Если в квартире нужно заменить радиаторы, трубы или входную дверь, тогда чертежи готовят за 2 - 3 дня. 

Фото: План монтажа

Если в квартире не нужно ничего менять или переделывать тогда эти планы не делают, а дизайнер переходит сразу к другим чертежам. 

План напольных покрытий

План напольных покрытий готовят после того, как клиент определился с материалом для пола. Тут дизайнеру нужно согласовать раскладку напольного покрытия в разных комнатах.

Чертеж готовят за 1–3 дня.


Фото: План пола

Если в квартире будет теплый пол, тогда дополнительно делают план теплого пола. Чертеж делают параллельно в тот же период что и план пола. 

Фото: План теплого пола

Некоторые чертежи могут делать параллельно  поэтому они не требуют дополнительного времени на разработку 

План потолка

Этот чертеж отражает, из чего будет сделан потолок, его размеры и наличие уровней.

Такой план готовится за 1–2 дня.

Фото: План потолка

Когда готовы планы демонтажа и монтажа, планы напольных покрытий и потолка, их пакетом отправляют на согласование заказчику. В среднем их делают 3-5 дней.

Такой способ ускоряет процесс ремонта. Строителям не нужно ждать неделями, пока будут готовы все чертежи, они могут начать работу по тем планам, которые уже согласованы с клиентом.

План освещения

На плане освещения дизайнер обозначает светильники на потолке, стенах и люстры.

Фото: План расстановки светильников

Также делают план светильников по группам. Там отдельно обозначают светильники на стене и потолке.

Оба чертежа готовят за 2–3 дня.

Фото: План светильников по группам

План розеток

План розеток содержит информацию о расположении розеток, выключателей и электровыводов. Также там обозначают местоположение регуляторов, интернет и ТВ- розеток.

План готовят 2 - 3 дня.

Фото: План розеток

План развертки стен

Когда готовы все планы, дизайнер делает разверстки стен для каждой комнаты.

Процесс этот трудоемкий и занимает от 2 - до 5 дней. 

Фото: Развертка стен в кабинете 

Последний пакет состоящий из плана освещения, плана розеток и планов разверстки стен готовят 3 - 5 дней. 

Выводы

Если подводить итоги, то весь необходимый пакет чертежей дизайнер готовит за 10–14 рабочих дней. В этот период дизайнер обсуждает с клиентом чертежи, вносит правки и предлагает подходящие решения. Дизайнер согласовывает с клиентом сразу несколько чертежей, чтобы после согласования сразу отдать их строителям и не терять время Таким образом мы меньше тревожим наших клиентов и ускоряем процесс ремонта.  

Напишите нам на Whatsapp и мы посчитаем сроки и стоимость для дизайн-проекта

Оставьте ваш комментарий и поделитесь в мессенджерах

Комментариев пока нет, будьте первым.

Добавить комментарий:

Сколько времени нужно для создания чертежей
Aqremont
Email: info@aqremont.ru
Phone: 8 (495) 109-22-59
Url:
ул.3-я Хорошевская, 18к3
Москва, 123308